Search Listings
1215 SARAH LaneAuburn, AL 36830
Due to the health concerns created by COVID we are offering personal 1-1 online video walkthough tours where possible.




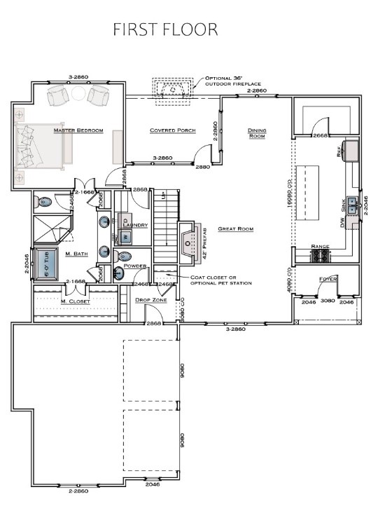
Welcome to Auburn Farms! Customize your dream home & move in this fall - October 2026! This 5 bedroom, three and a half bathroom, 3,015 square foot Henry floorplan is spacious with 2-stories. It features an open great room with fireplace, large dining area, and a chef’s kitchen with oversized island and walk-in pantry. The main-level primary suite offers a luxurious bath with soaking tub, separate shower, dual vanities, and a generous walk-in closet. A covered porch extends the living space outdoors, with an optional outdoor fireplace available. Additional conveniences include a dedicated laundry room, powder bath, and a functional drop zone off the garage. Upstairs includes four additional bedrooms, three full baths, and a large loft perfect for a second living area, playroom, or media space. Well-designed with multiple ensuite-style bedroom setups and thoughtful storage throughout, this floorplan blends comfort, flexibility, and modern living for today’s families. Future community amenities include a pool, pavilion, pickleball courts, bocce ball, playground, and a community fire pit.
| 19 hours ago | Listing first seen on site | |
| yesterday | Listing updated with changes from the MLS® |
Listing information is provided by Participants of the Lee County Association of Realtors MLS. IDX information is provided exclusively for personal, non-commercial use, and may not be used for any purpose other than to identify prospective properties consumers may be interested in purchasing. Information is deemed reliable but not guaranteed. Copyright 2026, Lee County Association of Realtors MLS.
Last checked: 2026-04-08 03:46 PM UTC


